Les Falles a Sagunt acaben amb un balanç positiu i una gran implicació de la comunitat fallera
El dispositiu de neteja de la SAG retira un total de 208 tones de cendres després de la tradicional cremà


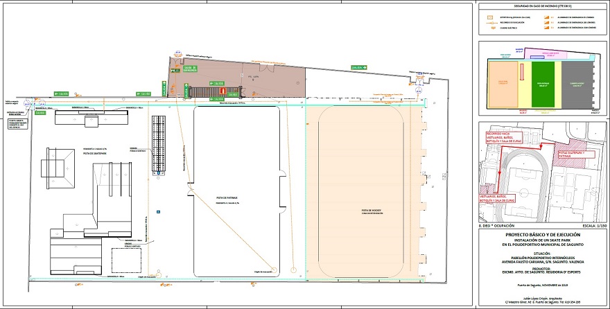
L'Ajuntament de Sagunt, mitjançant resolució d'Alcaldia, ha aprovat l'expedient de licitació de les obres de les pistes de skate i patinatge artístic. Es tracta d'unes instal·lacions previstes en el Pla Director d'Instal·lacions Esportives aprovat en 2018, que se situaran en el Poliesportiu Municipal (internuclis).
Estes noves pistes ocuparan el lloc del camp de futbol-7, tenen un pressupost base de licitació de 232 340 euros IVA inclòs i un termini d'execució de 3 mesos. «En breu estarà la licitació publicada en la plataforma de contractes», ha assegurat el regidor d'Esports i de Contractació, Javier Raro, qui ha assenyalat que estes pistes «dotaran la ciutat d'unes instal·lacions de màxima qualitat per a esports de rodes (skate, escúter, patinatge artístic, etc.) i que es complementarà amb la pista d'hoquei que ja tenim construïda».

Per a Raro estes noves pistes de skate i patinatge «són un exemple de l'esforç que fa l'Ajuntament per tindre unes instal·lacions de la màxima qualitat, que permeten als nostres clubs i esportistes fer esport en les millors condicions possibles. I ja podem assegurar que serà una realitat en els pròxims mesos».
Una vegada aprovada esta licitació, el regidor ha assegurat que els pròxims objectius a abordar a curt termini, relacionats amb les instal·lacions esportives municipals, seran la licitació de la coberta de les pistes exteriors annexes al pavelló José Veral, «instal·lació sobre la qual estem finalitzant el projecte constructiu» i, sobretot, la nova licitació del pavelló situat en el SUNP-VI, «que tornarem a llançar en les pròximes setmanes una vegada s'haja finalitzat l'expedient de contractació adaptat als nous preus, després d'una nova injecció econòmica de part municipal, que es va aprovar en el ple extraordinari de maig».
El dispositiu de neteja de la SAG retira un total de 208 tones de cendres després de la tradicional cremà
El termini per a la presentació d'un màxim de dos projectes per entitat al Gabinet de Promoció del Valencià acaba el pròxim 6 de maig
Serà del 27 de març a l'1 d'abril i la iniciativa pretén posar en valor la importància de la pràctica regular d'exercici físic per a millorar la salut, el benestar i la qualitat de vida